00%
Connexion

Afin de profiter de la création d'alertes, des différentes simulations et de la sauvegarde de biens, connectez-vous à votre compte Uni.

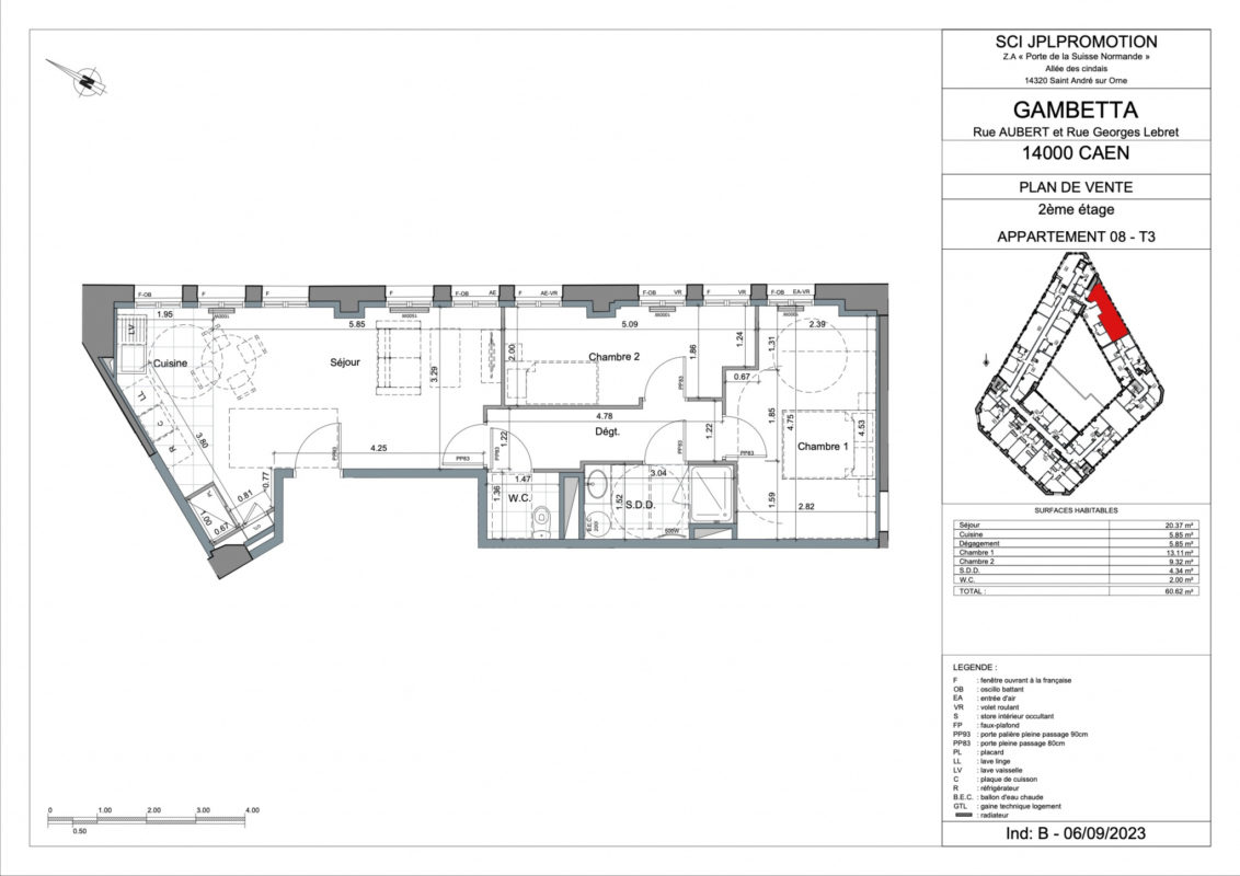
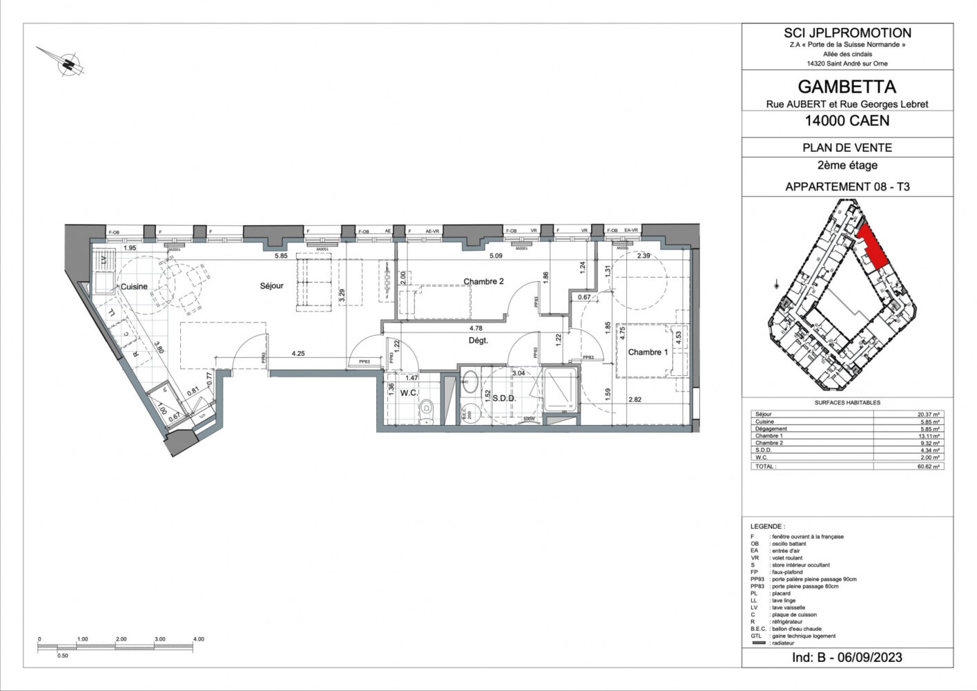
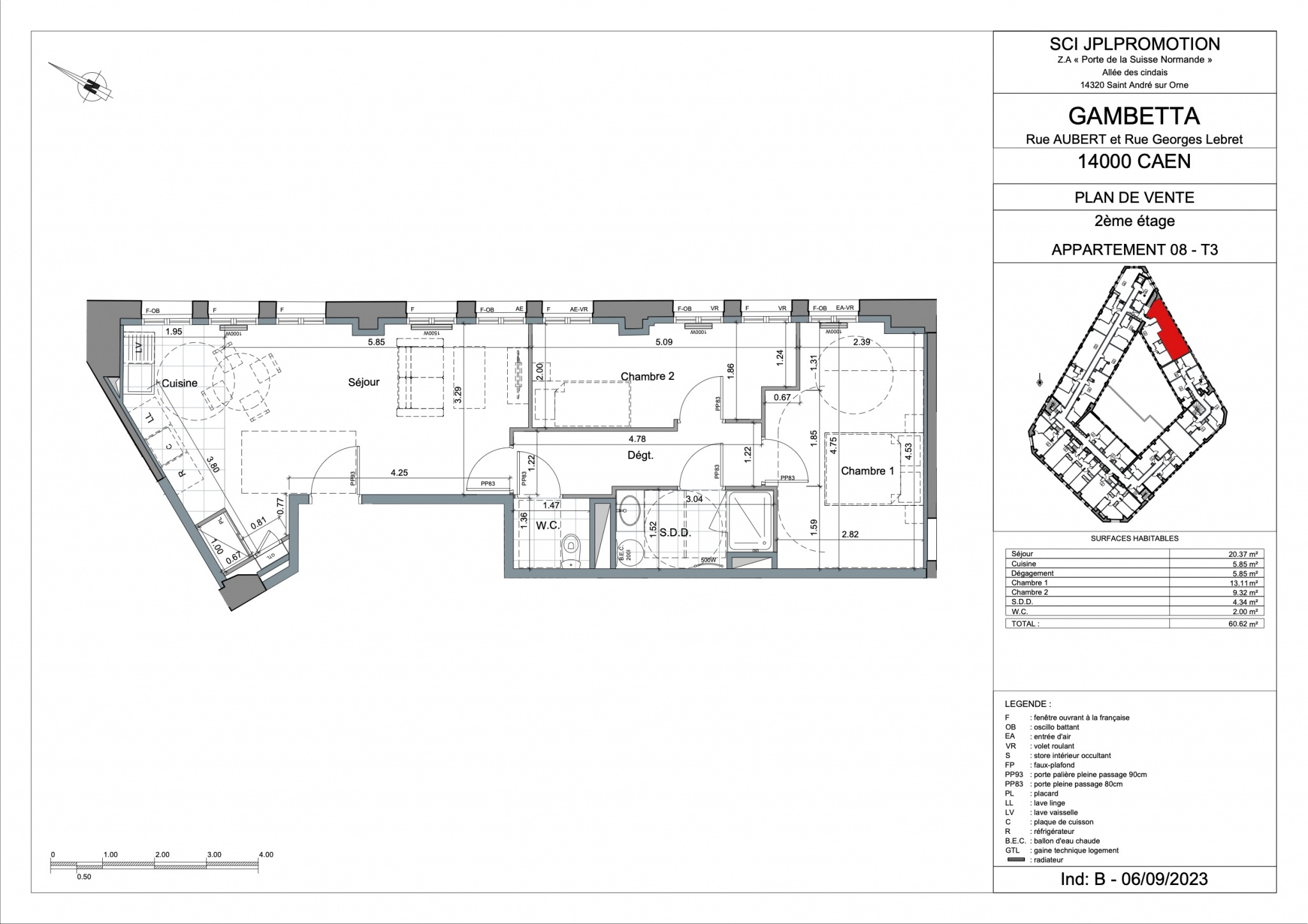
Appartement T3 60,37m2 - GAMBETTA

14000 Caen - Nombre de pièces : 3 - Surface : 60.37m2

344 000 €

Publiée le 31/07/2024
Réf : VAP10003039

Descriptif de ce bien


Véritable vecteur de transactions dans la région caennaise, l’agence Uni Immobilier vous propose une sélection de 20 appartements prestigieux, situés dans un des bâtiments les plus historiques de Caen. Le Gambetta.

Situé en plein cœur du quartier administratif sur la place Gambetta, ce bâtiment, réalisé par l’architecte Pierre Chirol en 1932, est inscrit aux monuments historiques depuis le mois d’août 2010.

Le deuxième étage de cet édifice, qui abritait autrefois une centrale téléphonique, fait aujourd’hui l’objet d’une rénovation totale, en vue de la création de 20 nouveaux logements haut de gamme, donnant directement sur les Places de la République et Gambetta ainsi que sur le cours Général de Gaulle.

Du T1 au T4, ces différents logements vous offriront divers avantages et
prestations. Sans vis-à-vis, ils vous assureront une implantation dans l’hypercentre de Caen, à proximité de tous les commerces. Parmi les 20 appartements proposés, 3 d'entre eux disposent d’un toit terrasse, vous permettant de bénéficier d’une vue inédite / unique sur la ville de Caen. La livraison est prévue pour le troisième trimestre 2025.

Afin de vous offrir le meilleur cadre de vie, l’agence Uni immobilier met à votre disposition un large panel de prestations :

Que vous souhaitiez investir dans une résidence principale, secondaire, ou que vous ayez pour objectif de vous lancer dans un investissement locatif, ces logements sont faits pour vous !



Toutes les caractéristiques de ce bien :
Lot 8
Appartement T3
Surface : 60,37m2

Il est composé de :
-1 séjour
-1 cuisine
-2 chambres
-1 salle d'eau
-1 WC

Prix : 344 000€

Honoraires à la charge du vendeur

Frais de notaires caculés uniquement sur la partie foncier, à savoir : 149 000€

Contact direct :
Malick DIENG
06 31 45 39 55
mdieng@uni-immobilier.fr

Cette annonce a été rédigée par l’agence immobilière UNI (SIRET : 908 382 542 00011) et par EI Malick DIENG, mandataire indépendant en immobilier, agent commercial de l'agence UNI (Immatriculation au RCS : 949 706 139 R.C.S CAEN)

Caractéristiques de ce bien

Picto 60.37m² 60.37m²
Picto 1 Salle d'eau 1 Salle d'eau
Picto 2 Chambres 2 Chambres
uni classes energie 16032024
Découvrez le quartier en déplacant l’icône Contrôle de Pegman dans Street View à l’endroit souhaité de la carte ci-dessous

Informations complémentaires

Réf. de l’annonce : VAP10003039
Année de construction : 1932
Étage : 2 (sur 2)
Ascenseur : OUI

contact contact
Réf. VAP10003039

3 pièces 60.37m²

14000 Caen
Nombre de pièces : 3
Surface : 60.37m2
344 000 €

négociateur immobilier

Malick
Dieng

Conseiller Immobilier & associé
Voir le téléphone
Contactez-moi
Contactez-nous

Appartement T3 60,37m2 - GAMBETTA
Envoi des informations saisie
Votre demande a bien été envoyé

Nous reviendrons vers vous dans les plus brefs délais.

Retour à la page d'accueil

Les mentions avec astérisque (*) sont obligatoires.
Politique de confidentialité

Simulation ajoutée à vos simulations avec succès !

Des outils à
vos interrogations

Estimer mon bien

Au prix du marché

L’estimation de votre bien immobilier au plus proche de la réalité.

En 3 minutes maximum

Pas de perte de temps, recevez directement votre estimation en ligne.

En toute simplicité

Contactez notre équipe au 02 61 53 67 58 ou à contact@uni-immobilier.fr et discutons de votre projet !

  • Estimer mon bien
  • Simulateur frais de notaire
  • Simulateur capacité d'emprunt
  • Mensualités de remboursement
Estimez votre bien
dès maintenant

Les simulations réalisées sur uni-immobilier.fr ont pour but de donner une estimation approximative. Les différents paramètres et taux étant en constante évolution, nous ne pouvons garantir l’exactitude des résultats. Pour des simulations précises, merci de nous contacter par mail à contact@uni-immobilier.fr ou par téléphone au 02 61 53 67 58.

Simulations des frais de notaire
Type de bien
Neuf
Ancien
Prix d'achat
Veuillez remplir tous les champs Continuer

Résultats de votre simulation

Type de bien :

Montant du bien :

Pourcentage de frais :

Montant des frais :

Sauvegarder la simulation Retour

Les simulations réalisées sur uni-immobilier.fr ont pour but de donner une estimation approximative. Les différents paramètres et taux étant en constante évolution, nous ne pouvons garantir l’exactitude des résultats. Pour des simulations précises, merci de nous contacter par mail à contact@uni-immobilier.fr ou par téléphone au 02 61 53 67 58.

Capacité d'emprunt
Revenus
Charges
Apport
Durée du prêt
Taux d'intérêt, assurances comprises (%)
Veuillez remplir tous les champs Continuer

Type de bien :

Vos revenus :

Vos charges :

Votre apport :

Durée du prêt :

Taux du prêt :

Votre capacité d'emprunt :

Coût total du projet :

Sauvegarder la simulation Retour

Les simulations réalisées sur uni-immobilier.fr ont pour but de donner une estimation approximative. Les différents paramètres et taux étant en constante évolution, nous ne pouvons garantir l’exactitude des résultats. Pour des simulations précises, merci de nous contacter par mail à contact@uni-immobilier.fr ou par téléphone au 02 61 53 67 58.

Mensualités de remboursement
Prix d'achat
Apport
Durée du prêt
Taux d'intérêt, assurances comprises (%)
Veuillez remplir tous les champs Continuer

Type de bien :

Prix d'achat :

Votre apport :

Durée du prêt :

Taux du prêt :

Mensualités :

Sauvegarder la simulation Retour

Les simulations réalisées sur uni-immobilier.fr ont pour but de donner une estimation approximative. Les différents paramètres et taux étant en constante évolution, nous ne pouvons garantir l’exactitude des résultats. Pour des simulations précises, merci de nous contacter par mail à contact@uni-immobilier.fr ou par téléphone au 02 61 53 67 58.