00%
Connexion

Afin de profiter de la création d'alertes, des différentes simulations et de la sauvegarde de biens, connectez-vous à votre compte Uni.

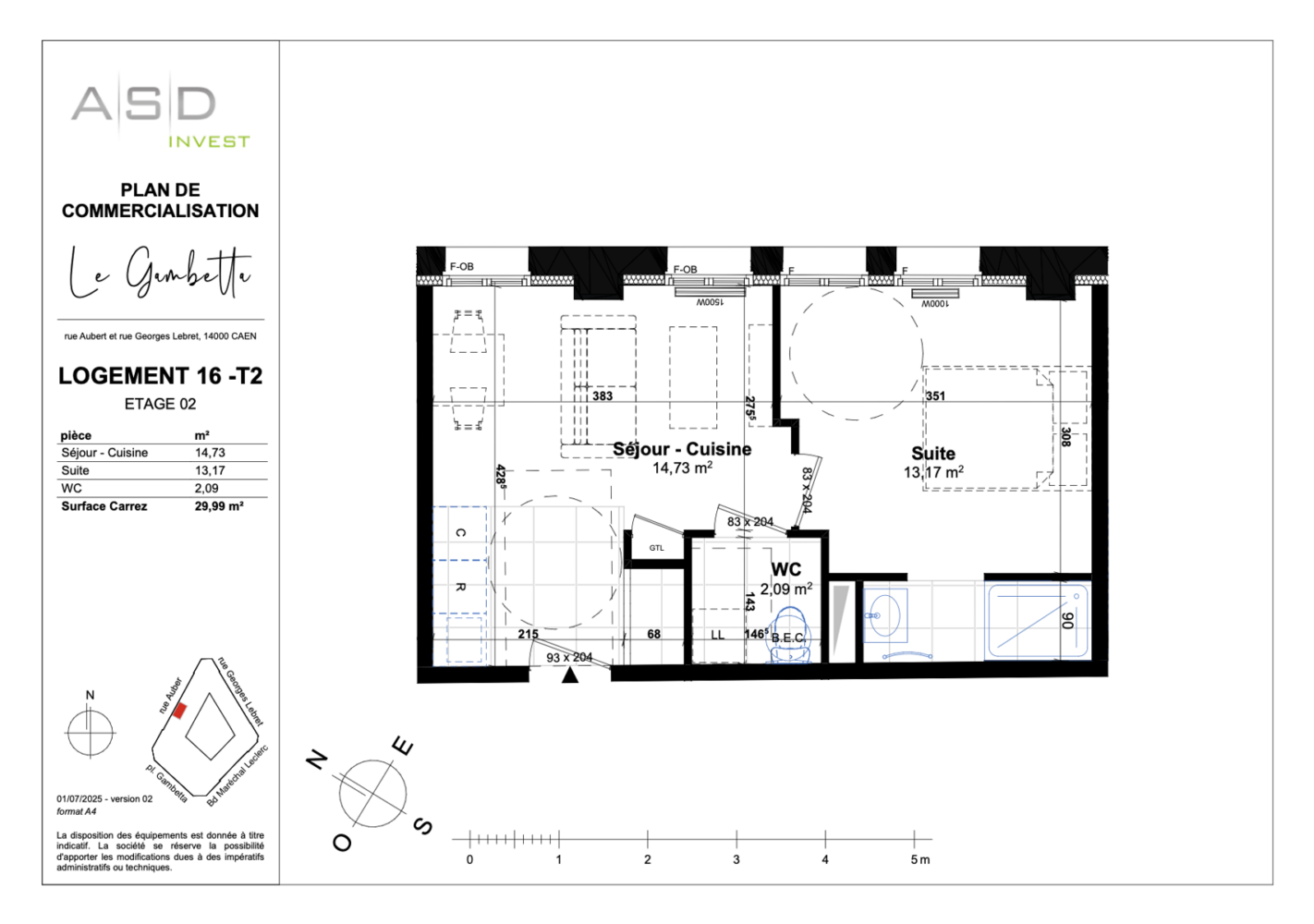
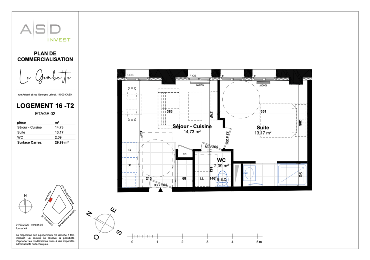
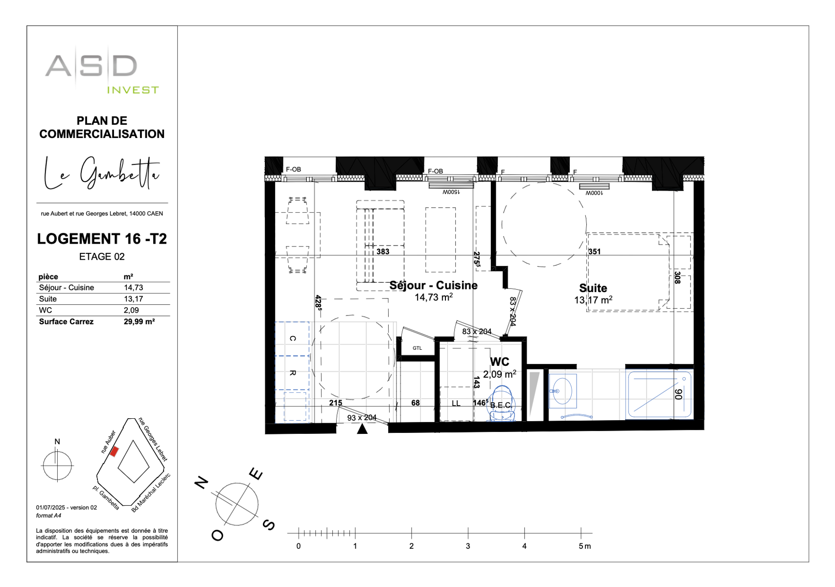
Appartement T2 30m² - Lot 16 - GAMBETTA

14000 Caen - Nombre de pièces : 2 - Surface : 30m2

198 000 €

Publiée le 08/09/2025
Réf : 7125100

Descriptif de ce bien

Situé sur la Place Gambetta, en plein cœur du quartier administratif de Caen, le bâtiment Le Gambetta, réalisé en 1932 par l’architecte Pierre Chirol et inscrit aux Monuments Historiques depuis 2010, fait aujourd’hui l’objet d’une rénovation complète.

Le deuxième étage accueillera 23 appartements du T1 au T4, dont 3 avec toit-terrasse offrant une vue unique sur la ville.

Ces logements sont proposés dans le cadre d’une VIR (Vente d’Immeuble à Rénover), un dispositif proche de la VEFA : vous achetez votre bien dès aujourd’hui et financez au fur et à mesure de l’avancement des travaux, qui sont intégralement réalisés par le promoteur et couverts par les garanties légales.

Vous profitez ainsi du confort du neuf tout en valorisant un bâtiment historique de Caen.

La livraison est prévue au 4e trismestre 2027.

Les appartements T1 et T2 sont livrés avec un pack cuisine (meuble-évier, plaque de cuisson et réfrigérateur sous-évier).

Tous les logements disposent d’un chauffage électrique individuel.

Située en hypercentre, la résidence offre un cadre de vie privilégié : commerces, services et transports à proximité immédiate.

Un local à vélos est également mis à disposition des résidents.

Nous vous présentons :

T2 - Lot 16

Surface habitable : 30,00 m²

Composé de :

  • 1 séjour / cuisine
  • 1 chambre
  • 1 salle de bain
  • 1 WC

Prix : 198 000 euros HAI

Honoraires à la charge du vendeur

Contact direct :

Malick DIENG

06 31 45 39 55

mdieng@uni-immobilier.fr

Cette annonce a été rédigée par l’agence immobilière UNI (SIRET : 908 382 542 00011) et par EI Malick DIENG, mandataire indépendant en immobilier, agent commercial de l'agence UNI (Immatriculation au RCS : 949 706 139 R.C.S CAEN)

Caractéristiques de ce bien

Picto 30m² 30m²
Picto 1 Salle d'eau 1 Salle d'eau
Picto 1 Chambres 1 Chambres
uni classes energie 16032024
Découvrez le quartier en zoomant dans la carte ci-dessous

Informations complémentaires

Réf. de l’annonce : 7125100
Ascenseur : Oui

contact contact
Réf. 7125100

2 pièces 30m²

14000 Caen
Nombre de pièces : 2
Surface : 30m2
198 000 €

négociateur immobilier

Malick
Dieng

Conseiller Immobilier & associé
Voir le téléphone
Contactez-moi
Contactez-nous

Appartement T2 30m² - Lot 16 - GAMBETTA
Envoi des informations saisie
Votre demande a bien été envoyé

Nous reviendrons vers vous dans les plus brefs délais.

Retour à la page d'accueil

Les mentions avec astérisque (*) sont obligatoires.
Politique de confidentialité

Simulation ajoutée à vos simulations avec succès !

Des outils à
vos interrogations

Estimer mon bien

Au prix du marché

L’estimation de votre bien immobilier au plus proche de la réalité.

En 3 minutes maximum

Pas de perte de temps, recevez directement votre estimation en ligne.

En toute simplicité

Contactez notre équipe au 02 61 53 67 58 ou à contact@uni-immobilier.fr et discutons de votre projet !

  • Estimer mon bien
  • Simulateur frais de notaire
  • Simulateur capacité d'emprunt
  • Mensualités de remboursement
Estimez votre bien
dès maintenant

Les simulations réalisées sur uni-immobilier.fr ont pour but de donner une estimation approximative. Les différents paramètres et taux étant en constante évolution, nous ne pouvons garantir l’exactitude des résultats. Pour des simulations précises, merci de nous contacter par mail à contact@uni-immobilier.fr ou par téléphone au 02 61 53 67 58.

Simulations des frais de notaire
Type de bien
Neuf
Ancien
Prix d'achat
Veuillez remplir tous les champs Continuer

Résultats de votre simulation

Type de bien :

Montant du bien :

Pourcentage de frais :

Montant des frais :

Sauvegarder la simulation Retour

Les simulations réalisées sur uni-immobilier.fr ont pour but de donner une estimation approximative. Les différents paramètres et taux étant en constante évolution, nous ne pouvons garantir l’exactitude des résultats. Pour des simulations précises, merci de nous contacter par mail à contact@uni-immobilier.fr ou par téléphone au 02 61 53 67 58.

Capacité d'emprunt
Revenus
Charges
Apport
Durée du prêt
Taux d'intérêt, assurances comprises (%)
Veuillez remplir tous les champs Continuer

Type de bien :

Vos revenus :

Vos charges :

Votre apport :

Durée du prêt :

Taux du prêt :

Votre capacité d'emprunt :

Coût total du projet :

Sauvegarder la simulation Retour

Les simulations réalisées sur uni-immobilier.fr ont pour but de donner une estimation approximative. Les différents paramètres et taux étant en constante évolution, nous ne pouvons garantir l’exactitude des résultats. Pour des simulations précises, merci de nous contacter par mail à contact@uni-immobilier.fr ou par téléphone au 02 61 53 67 58.

Mensualités de remboursement
Prix d'achat
Apport
Durée du prêt
Taux d'intérêt, assurances comprises (%)
Veuillez remplir tous les champs Continuer

Type de bien :

Prix d'achat :

Votre apport :

Durée du prêt :

Taux du prêt :

Mensualités :

Sauvegarder la simulation Retour

Les simulations réalisées sur uni-immobilier.fr ont pour but de donner une estimation approximative. Les différents paramètres et taux étant en constante évolution, nous ne pouvons garantir l’exactitude des résultats. Pour des simulations précises, merci de nous contacter par mail à contact@uni-immobilier.fr ou par téléphone au 02 61 53 67 58.