00%
Connexion

Afin de profiter de la création d'alertes, des différentes simulations et de la sauvegarde de biens, connectez-vous à votre compte Uni.

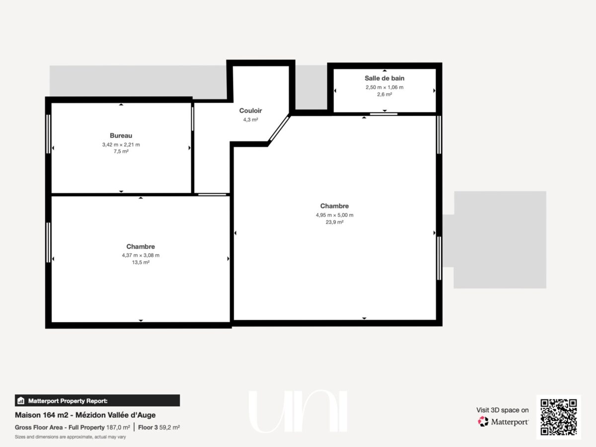
Maison de 164 m² - Mézidon Vallée d'Auge

14270 Mézidon Vallée d'Auge - Nombre de pièces : 6 - Surface : 164m2

310 000 €

Publiée le 02/12/2025
Réf : 7292613

VENDU
icone tag

Descriptif de ce bien

Nouvelle exclusivité chez UNI Immobilier !

Maison T7 de 164 m² (carrez) avec double garage et dépendance à rénover

Localisation : Mézidon Vallée d'Auge - à 4 min de la gare SNCF


Découvrez ce bien à travers le mot du propriétaire : « Construite en 1898 par le pharmacien du village, cette maison a gardé tout son charme avec ses parquets d’époque et ses belles cheminées en marbre. Nous avons toujours aimé son emplacement idéal, à 4 minutes de la gare et seulement 15 minutes en train de Caen. C’est une maison lumineuse, pleine de caractère, dans laquelle on se sent tout de suite bien. Nous espérons qu’elle trouvera des propriétaires qui sauront en profiter autant que nous. »

Les points forts de ce bien :

- Maison de caractère du 19e siècle

- Cheminées en marbre, parquets massifs et belle hauteur sous plafond

- Refection complète de la toiture en 2020

- Idéal location courte durée pour 9 voyageurs


Année de construction : 1898

Cette maison se compose comme suit :

Au rez-de-chaussée

- 1 cuisine

- 1 salle à manger ouverte sur salon

- 1 WC


1er étage :

- 2 chambres

- 1 salle de bain avec WC

- 1 petite pièce servant de dressing

2eme étage :

- 2 chambres dont 1 avec salle de douche

- 1 bureau

- 1 WC

Annexes :

- 1 double garage

- 1 dépendance à rénover

Huisseries : double vitrage PVC et bois

Type de chauffage : chaudière gaz

DPE : D (229) GES : D (49)

Estimation des coûts annuels d'énergie du logement : entre 3 260 euros et 4 460 euros

Taxe foncière : 1373 €

Les informations sur les risques auxquels ce bien est exposé sont disponibles sur le site Géorisques : www.georisques.gouv.fr

Prix : 310 000 euros HAI

Taux d’honoraires : 6,90 % TTC, soit 290 000 euros hors frais.

Lien de l'annonce avec visite virtuelle : https://my.matterport.com/show/

Lien du site internet : www.uni-immobilier.fr

Contact direct :
Malick DIENG
06 31 45 39 55
mdieng@uni-immobilier.fr

Cette annonce a été rédigée par l’agence immobilière UNI (SIRET : 908 382 542 00011) et par EI Malick DIENG, mandataire indépendant en immobilier, agent commercial de l'agence UNI (Immatriculation au RCS : 949 706 139 R.C.S CAEN)

Caractéristiques de ce bien

Picto 164m² 164m²
Picto 1 Salle de bain 1 Salle de bain
Picto 1 Salle d'eau 1 Salle d'eau
Picto 4 Chambres 4 Chambres
D Classe énergie
D Émission GES
uni classes energie 16032024
Découvrez le quartier en zoomant dans la carte ci-dessous

Informations complémentaires

Réf. de l’annonce : 7292613
Ascenseur : Non

contact contact
Réf. 7292613

6 pièces 164m²

14270 Mézidon Vallée d'Auge
Nombre de pièces : 6
Surface : 164m2
310 000 €

négociateur immobilier

Malick
Dieng

Conseiller Immobilier & associé
Voir le téléphone
Contactez-moi
Contactez-nous

Maison de 164 m² - Mézidon Vallée d'Auge
Envoi des informations saisie
Votre demande a bien été envoyé

Nous reviendrons vers vous dans les plus brefs délais.

Retour à la page d'accueil

Les mentions avec astérisque (*) sont obligatoires.
Politique de confidentialité

Simulation ajoutée à vos simulations avec succès !

Des outils à
vos interrogations

Estimer mon bien

Au prix du marché

L’estimation de votre bien immobilier au plus proche de la réalité.

En 3 minutes maximum

Pas de perte de temps, recevez directement votre estimation en ligne.

En toute simplicité

Contactez notre équipe au 02 61 53 67 58 ou à contact@uni-immobilier.fr et discutons de votre projet !

  • Estimer mon bien
  • Simulateur frais de notaire
  • Simulateur capacité d'emprunt
  • Mensualités de remboursement
Estimez votre bien
dès maintenant

Les simulations réalisées sur uni-immobilier.fr ont pour but de donner une estimation approximative. Les différents paramètres et taux étant en constante évolution, nous ne pouvons garantir l’exactitude des résultats. Pour des simulations précises, merci de nous contacter par mail à contact@uni-immobilier.fr ou par téléphone au 02 61 53 67 58.

Simulations des frais de notaire
Type de bien
Neuf
Ancien
Prix d'achat
Veuillez remplir tous les champs Continuer
Résultats de votre simulation

Type de bien :

Montant du bien :

Pourcentage de frais :

Montant des frais :

Sauvegarder la simulation Retour

Les simulations réalisées sur uni-immobilier.fr ont pour but de donner une estimation approximative. Les différents paramètres et taux étant en constante évolution, nous ne pouvons garantir l’exactitude des résultats. Pour des simulations précises, merci de nous contacter par mail à contact@uni-immobilier.fr ou par téléphone au 02 61 53 67 58.

Capacité d'emprunt
Revenus
Charges
Apport
Durée du prêt
Taux d'intérêt, assurances comprises (%)
Veuillez remplir tous les champs Continuer

Type de bien :

Vos revenus :

Vos charges :

Votre apport :

Durée du prêt :

Taux du prêt :

Votre capacité d'emprunt :

Coût total du projet :

Sauvegarder la simulation Retour

Les simulations réalisées sur uni-immobilier.fr ont pour but de donner une estimation approximative. Les différents paramètres et taux étant en constante évolution, nous ne pouvons garantir l’exactitude des résultats. Pour des simulations précises, merci de nous contacter par mail à contact@uni-immobilier.fr ou par téléphone au 02 61 53 67 58.

Mensualités de remboursement
Prix d'achat
Apport
Durée du prêt
Taux d'intérêt, assurances comprises (%)
Veuillez remplir tous les champs Continuer

Type de bien :

Prix d'achat :

Votre apport :

Durée du prêt :

Taux du prêt :

Mensualités :

Sauvegarder la simulation Retour

Les simulations réalisées sur uni-immobilier.fr ont pour but de donner une estimation approximative. Les différents paramètres et taux étant en constante évolution, nous ne pouvons garantir l’exactitude des résultats. Pour des simulations précises, merci de nous contacter par mail à contact@uni-immobilier.fr ou par téléphone au 02 61 53 67 58.