00%
Connexion

Afin de profiter de la création d'alertes, des différentes simulations et de la sauvegarde de biens, connectez-vous à votre compte Uni.

Maison T4 - 88m²

14250 Tilly-sur-Seulles - Nombre de pièces : 4 - Surface : 88m2

239 000 €

Publiée le 19/11/2025
Réf : 7277595

icone tag

Descriptif de ce bien

Nouveau bien en vente chez UNI IMMOBILIER !

Maison 4 pièces de 88m² sur un terrain de 2 000m²

localisation : Tilly-Sur-Seulles a environ 20min de BAYEUX

Les points forts de ce bien :

- Grand espace exterieur

-Volets électrique

-Proche de tous commerces

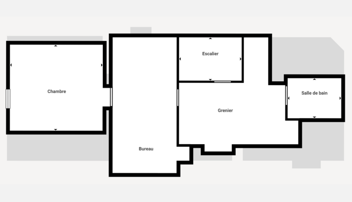
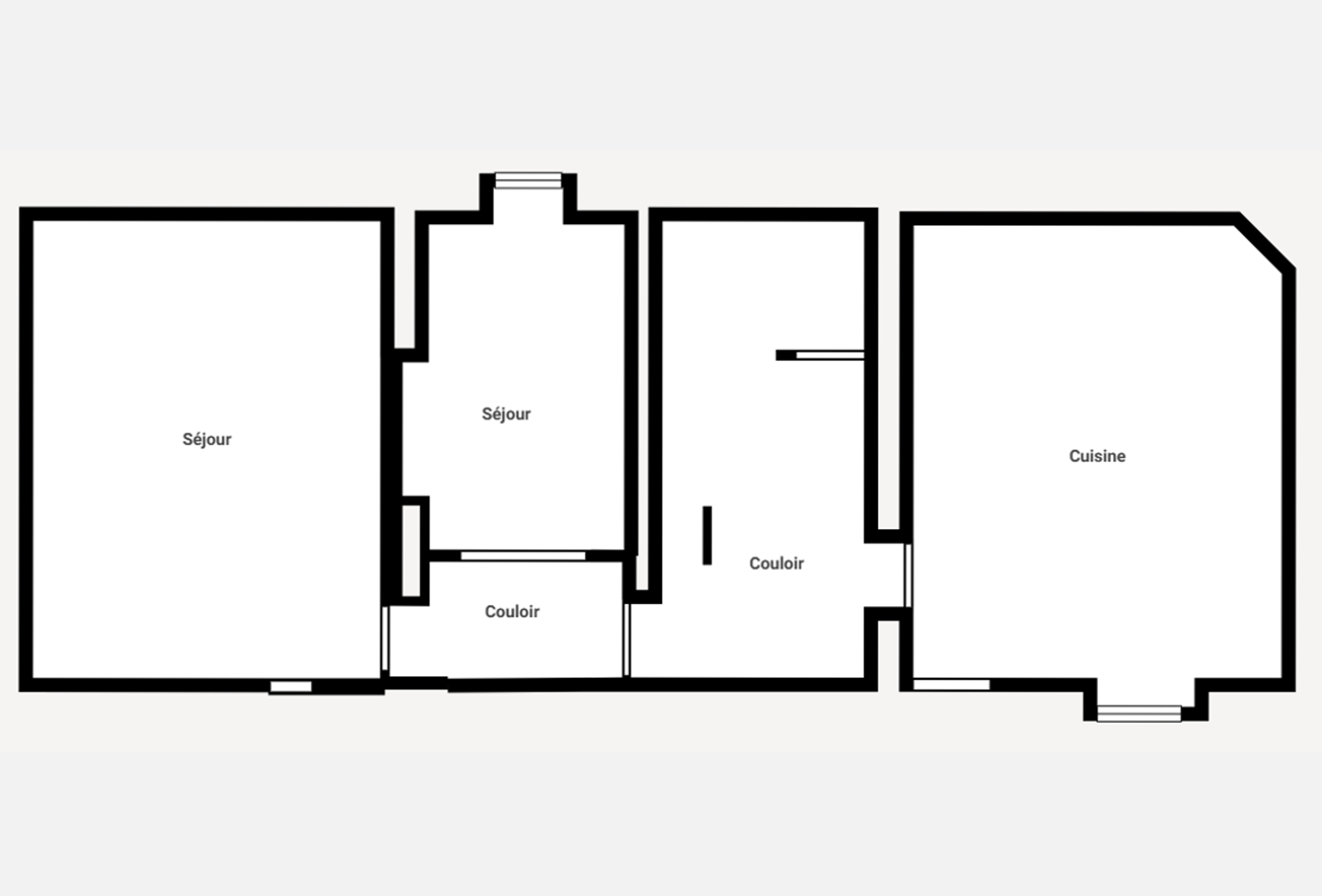
Cette maison se compose comme suit :

au RDC :

-1 cuisine/salle
-1 Salon
-1 chambre
-1 WC

Au premier étage :

-1 mezzanine
-1 bureau
-1 chambre
-1 salle d'eau

Type de chauffage : Pompe à chaleur

Huisseries : PVC double vitrage

DPE : C (170) GES : B (6)

Estimations des coûts annuels d'énergie du logement : entre 1 420€ et 1 970€ par an.

Les informations sur les risuqes auxquels ce bien exposé sont disponible sur le site Géorisques : www.georisques.gouv.fr

Prix : 239 000 euros HAI
Taux d'honoraires (charges acquéreur) : 3,47% soit 231 000€ hors frais.

Lien de la visite virtuelle:https://my.matterport.com/models/ymMotJ1u3nd
Lien de l'annonce :
Lien du site :https://www.uni-immobilier.fr/

Contact direct :
Bruneteau Louise
06 46 41 53 92
lbruneteau@uni-immobilier.fr
Cette annonce a été rédigée par l’agence immobilière UNI (SIRET : 908 382 542 00011) et par EI BRUNETEAU Louise , mandataire indépendant en immobilier, agent commercial de l'agence UNI (Immatriculation au RCS : 920 604 097 00013R.C.S CAEN).

Caractéristiques de ce bien

Picto 88m² 88m²
Picto 1 Salle d'eau 1 Salle d'eau
Picto 2 Chambres 2 Chambres
C Classe énergie
B Émission GES
uni classes energie 16032024
Découvrez le quartier en zoomant dans la carte ci-dessous

Informations complémentaires

Réf. de l’annonce : 7277595

contact contact
Réf. 7277595

4 pièces 88m²

14250 Tilly-sur-Seulles
Nombre de pièces : 4
Surface : 88m2
239 000 €

négociateur immobilier

Louise
Bruneteau

Prochainement Directrice & associée Agence Bayeux
Voir le téléphone
Contactez-moi
Contactez-nous

Maison T4 - 88m²
Envoi des informations saisie
Votre demande a bien été envoyé

Nous reviendrons vers vous dans les plus brefs délais.

Retour à la page d'accueil

Les mentions avec astérisque (*) sont obligatoires.
Politique de confidentialité

Simulation ajoutée à vos simulations avec succès !

Des outils à
vos interrogations

Estimer mon bien

Au prix du marché

L’estimation de votre bien immobilier au plus proche de la réalité.

En 3 minutes maximum

Pas de perte de temps, recevez directement votre estimation en ligne.

En toute simplicité

Contactez notre équipe au 02 61 53 67 58 ou à contact@uni-immobilier.fr et discutons de votre projet !

  • Estimer mon bien
  • Simulateur frais de notaire
  • Simulateur capacité d'emprunt
  • Mensualités de remboursement
Estimez votre bien
dès maintenant

Les simulations réalisées sur uni-immobilier.fr ont pour but de donner une estimation approximative. Les différents paramètres et taux étant en constante évolution, nous ne pouvons garantir l’exactitude des résultats. Pour des simulations précises, merci de nous contacter par mail à contact@uni-immobilier.fr ou par téléphone au 02 61 53 67 58.

Simulations des frais de notaire
Type de bien
Neuf
Ancien
Prix d'achat
Veuillez remplir tous les champs Continuer
Résultats de votre simulation

Type de bien :

Montant du bien :

Pourcentage de frais :

Montant des frais :

Sauvegarder la simulation Retour

Les simulations réalisées sur uni-immobilier.fr ont pour but de donner une estimation approximative. Les différents paramètres et taux étant en constante évolution, nous ne pouvons garantir l’exactitude des résultats. Pour des simulations précises, merci de nous contacter par mail à contact@uni-immobilier.fr ou par téléphone au 02 61 53 67 58.

Capacité d'emprunt
Revenus
Charges
Apport
Durée du prêt
Taux d'intérêt, assurances comprises (%)
Veuillez remplir tous les champs Continuer

Type de bien :

Vos revenus :

Vos charges :

Votre apport :

Durée du prêt :

Taux du prêt :

Votre capacité d'emprunt :

Coût total du projet :

Sauvegarder la simulation Retour

Les simulations réalisées sur uni-immobilier.fr ont pour but de donner une estimation approximative. Les différents paramètres et taux étant en constante évolution, nous ne pouvons garantir l’exactitude des résultats. Pour des simulations précises, merci de nous contacter par mail à contact@uni-immobilier.fr ou par téléphone au 02 61 53 67 58.

Mensualités de remboursement
Prix d'achat
Apport
Durée du prêt
Taux d'intérêt, assurances comprises (%)
Veuillez remplir tous les champs Continuer

Type de bien :

Prix d'achat :

Votre apport :

Durée du prêt :

Taux du prêt :

Mensualités :

Sauvegarder la simulation Retour

Les simulations réalisées sur uni-immobilier.fr ont pour but de donner une estimation approximative. Les différents paramètres et taux étant en constante évolution, nous ne pouvons garantir l’exactitude des résultats. Pour des simulations précises, merci de nous contacter par mail à contact@uni-immobilier.fr ou par téléphone au 02 61 53 67 58.